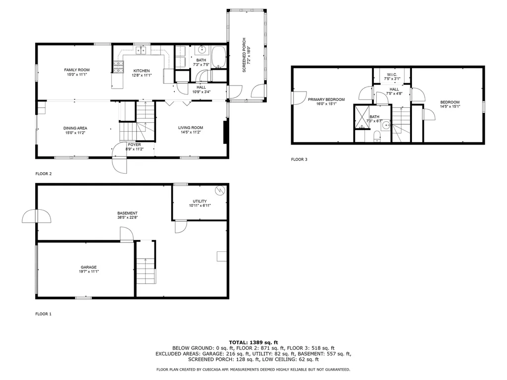
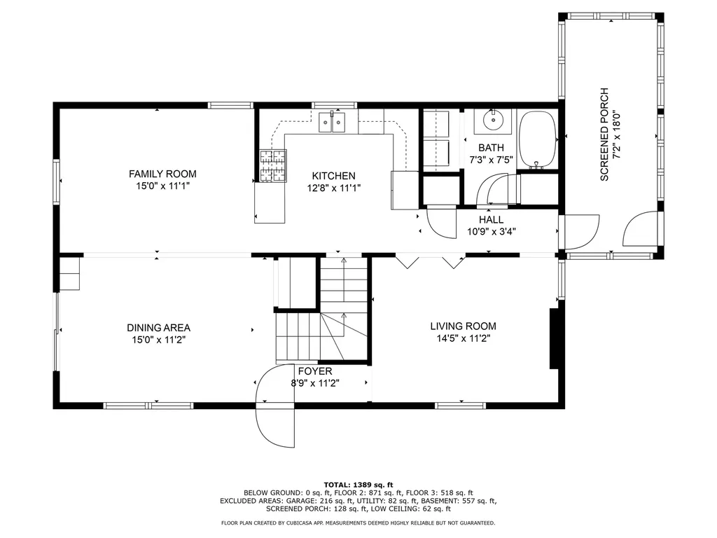
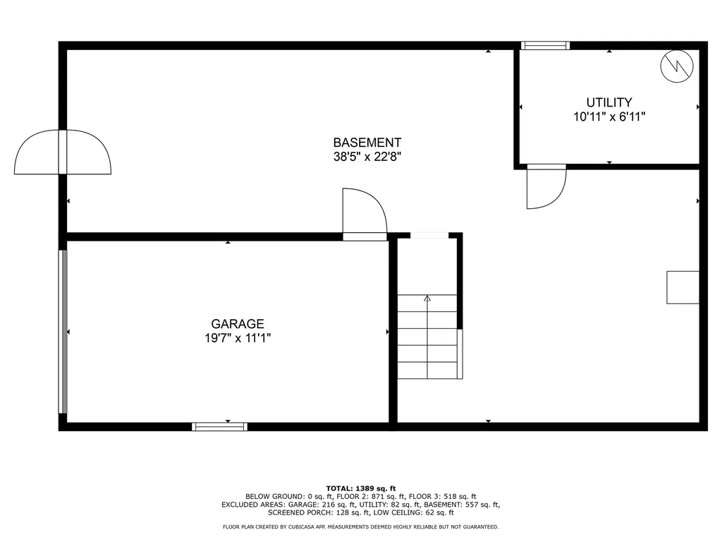
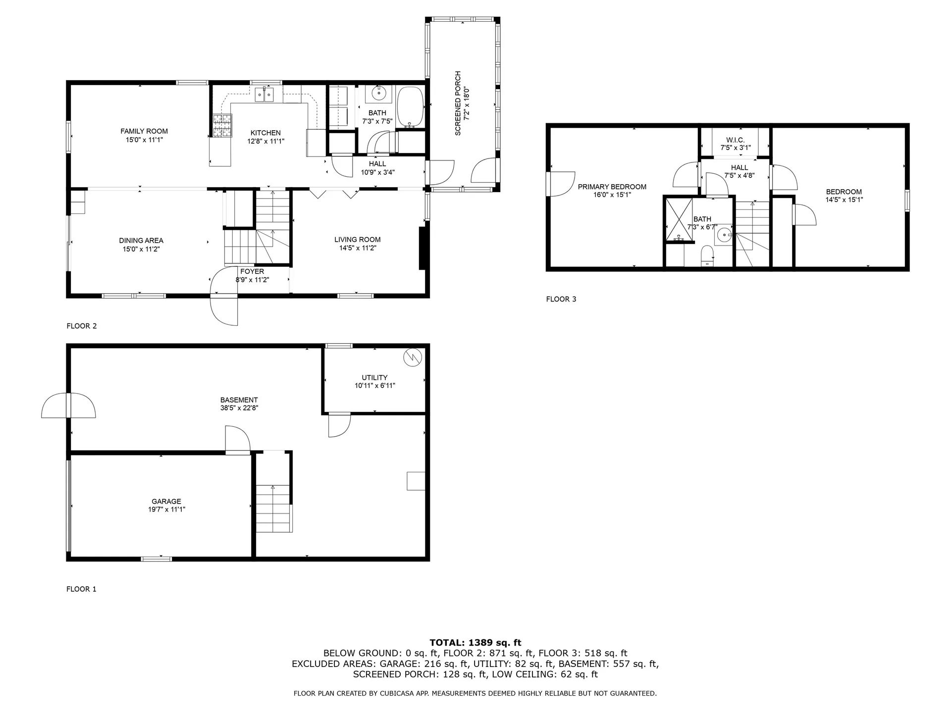
Charming 2 bedroom, 2 bathroom chalet on 1.65 acres, full of character and located directly across from Enosburg Country Club and just half a mile to downtown Enosburg Falls, offering easy access to shopping, dining, and Enosburg High School! This cozy Vermont home features an open main floor with natural flow between spaces, ideal for comfortable living and entertaining. The bright living and dining area boasts natural woodwork, abundant sunlight, and access to a large wrap-around deck with country views. The spacious kitchen includes granite countertops, stainless steel appliances, several wood cabinets, a pantry, and a breakfast bar for two. A second living area, divided by wooden french doors and with a brick hearth ready for a wood stove, adds rustic charm and flexibility. A full bath with laundry enhances the main level, and a large screened porch leads you to the expansive 1.65 acres. Upstairs are two generously-sized, carpeted bedrooms with a shared ¾ bath and an additional closet in the hallway. The primary bedroom offers a private balcony with views of Giddings Brook. The lower level includes ample storage space for all your outdoor gear, and access to the 1-car garage. Enjoy scenic surroundings, a peaceful yard, and the convenience of being 30 minutes to St. Albans, Jay Peak Ski Resort, and Smuggs Ski Resort. Perfect as a year-round home, vacation getaway, or investment property in Northern Vermont!

Listing Tools

Property Details of 227 W Berkshire Road

Property Details

Interior Features

Exterior Features

Utilities and Appliances

Community

Other Details

Map Location

Broker Reciprocity 

Copyright 2025 PrimeMLS, Inc. All rights reserved. This information is deemed reliable, but not guaranteed. The data relating to real estate displayed on this display comes in part from the IDX Program of PrimeMLS. The information being provided is for consumers’ personal, non-commercial use and may not be used for any purpose other than to identify prospective properties consumers may be interested in purchasing. Data last updated November 13, 2025 6:22 PM EST

 

Hi there! How can we help you?

Contact us using the form below or give us a call.

Send Us A Message:

I agree to receive marketing and customer service calls and text messages from Wallace Realty. To opt out, you can reply 'stop' at any time or click the unsubscribe link in the emails. Consent is not a condition of purchase. Msg/data rates may apply. Msg frequency varies. Privacy Policy.

Do not fill in this field:

This site is protected by reCAPTCHA and the Google Privacy Policy and Terms of Service apply.

Hi there! How can we help you?

Contact us using the form below or give us a call.

Send Us A Message:

Do not fill in this field:

This site is protected by reCAPTCHA and the Google Privacy Policy and Terms of Service apply.

Hi there! How can we help you?

Contact us using the form below or give us a call.

Send Us A Message:

Do not fill in this field:

This site is protected by reCAPTCHA and the Google Privacy Policy and Terms of Service apply.

Do not fill in this field:

This site is protected by reCAPTCHA and the Google Privacy Policy and Terms of Service apply.

Do not fill in this field:

This site is protected by reCAPTCHA and the Google Privacy Policy and Terms of Service apply.

Do not fill in this field:

This site is protected by reCAPTCHA and the Google Privacy Policy and Terms of Service apply.

$

Do not fill in this field:

This site is protected by reCAPTCHA and the Google Privacy Policy and Terms of Service apply.