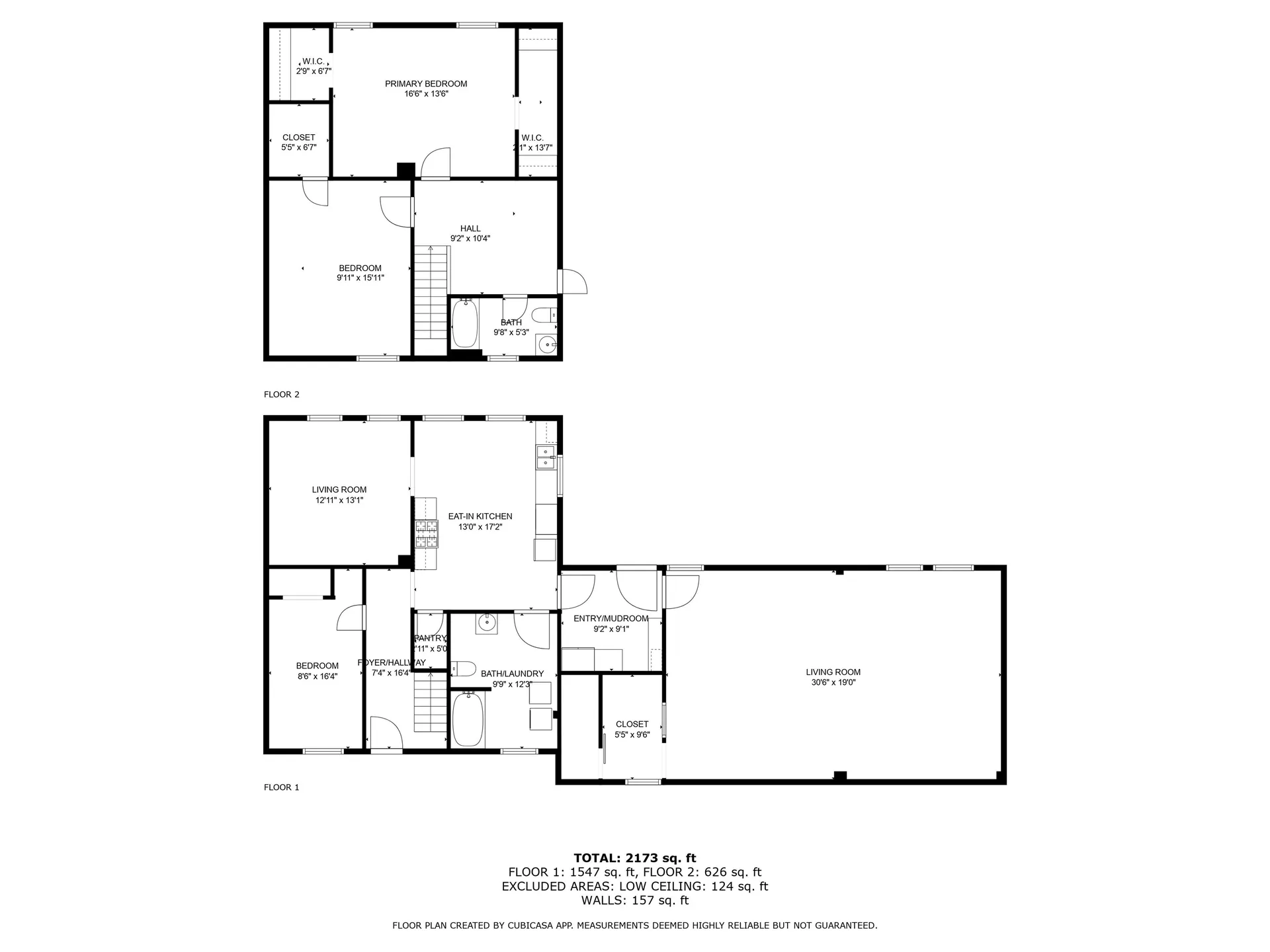
Offered for the first time since 1976, this well-loved 1800's Chelsea home is ready for its new owner! The 30' x 19' addition once housed a storefront and now offers tremendous flexibility-ideal for a home office, studio, or expanded living space. Recent upgrades include a new electrical panel and a high-efficiency propane boiler system, all installed after the 2023 floods which unfortunately came into the basement but did not damage the living space of the home. All cleaned out, it has a clean poured-concrete basement floor that provides great storage or workshop potential. Town water and sewer, plus an in-town location, make everyday living easy and convenient. The home offers a generous footprint with even more possibilities: the attic could be finished to add approximately 500+ square feet, or simply used as dry storage. While some projects remain, the home is fully livable and ready for your finishing touches. Laundry is conveniently located just off the mudroom, making this a great fit for those seeking single-level living. Affordable, it's a fantastic opportunity for first-time buyers or anyone looking to settle into the heart of Chelsea.

Listing Tools

Property Details of 303 Vt Route 110

Property Details

Interior Features

Exterior Features

Utilities and Appliances

Community

Other Details

Map Location

Broker Reciprocity 

Copyright 2025 PrimeMLS, Inc. All rights reserved. This information is deemed reliable, but not guaranteed. The data relating to real estate displayed on this display comes in part from the IDX Program of PrimeMLS. The information being provided is for consumers’ personal, non-commercial use and may not be used for any purpose other than to identify prospective properties consumers may be interested in purchasing. Data last updated November 8, 2025 7:37 PM EST

 

Hi there! How can we help you?

Contact us using the form below or give us a call.

Send Us A Message:

I agree to receive marketing and customer service calls and text messages from Wallace Realty. To opt out, you can reply 'stop' at any time or click the unsubscribe link in the emails. Consent is not a condition of purchase. Msg/data rates may apply. Msg frequency varies. Privacy Policy.

Do not fill in this field:

This site is protected by reCAPTCHA and the Google Privacy Policy and Terms of Service apply.

Hi there! How can we help you?

Contact us using the form below or give us a call.

Send Us A Message:

Do not fill in this field:

This site is protected by reCAPTCHA and the Google Privacy Policy and Terms of Service apply.

Hi there! How can we help you?

Contact us using the form below or give us a call.

Send Us A Message:

Do not fill in this field:

This site is protected by reCAPTCHA and the Google Privacy Policy and Terms of Service apply.

Do not fill in this field:

This site is protected by reCAPTCHA and the Google Privacy Policy and Terms of Service apply.

Do not fill in this field:

This site is protected by reCAPTCHA and the Google Privacy Policy and Terms of Service apply.

Do not fill in this field:

This site is protected by reCAPTCHA and the Google Privacy Policy and Terms of Service apply.

$

Do not fill in this field:

This site is protected by reCAPTCHA and the Google Privacy Policy and Terms of Service apply.